Цилиндры гидравлические с полым штоком односторонние с пружинным возвратом от 12 до 93 тонн.
Усилие: 120 - 930 кН
Рабочее давление: 700 бар
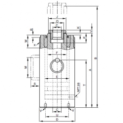
Благодаря возможности использования шпилек с резьбой проходящих через отверстие в штоке эти цилиндры могут использоваться для запрессовки и выпрессовки деталей, валов и пр. Закалённая опора штока, на корпусе крепёжная резьба по окружности, два глухих отверстия с резьбой в днище, муфтовые соединения.
Цилиндры гидравлические с полым штоком односторонние с пружинным возвратом от 12 до 93 тонн.
Усилие: 120 - 930 кН
Рабочее давление: 700 бар
Благодаря возможности использования шпилек с резьбой проходящих через отверстие в штоке эти цилиндры могут использоваться для запрессовки и выпрессовки деталей, валов и пр. Закалённая опора штока, на корпусе крепёжная резьба по окружности, два глухих отверстия с резьбой в днище, муфтовые соединения.
|
Класс по г/п
тонн
|
Тип
|
Артикул
4025092*
|
Сила домкрата
кН
|
Ход штока
мм
|
Площадь
см2
|
Макс. объем топлива
см3
|
Констр. высота
мм
|
Диаметр центр. отверстия
мм
|
Диам.
цилиндра
мм
|
Вес
кг
|
|
12
|
YCS-12/40
YCS-12/75
|
*150873
*150880
|
120
120
|
40
75
|
17.2
17.2
|
71
132
|
142
195
|
20
20
|
70
70
|
3.5
4.5
|
|
21
|
YCS-21/50
YCS-21/150
|
*150897
*150903
|
214
214
|
50
150
|
30.5
30.5
|
153
458
|
173
335
|
27
27
|
100
100
|
8.5
15.0
|
|
33
|
YCS-33/60
YCS-33/150
|
*150910
*150927
|
335
335
|
60
150
|
47.9
47.9
|
287
716
|
193
343
|
33
33
|
114
114
|
12.0
21.0
|
|
57
|
YCS-57/70
|
*150934
|
567
|
70
|
81.0
|
562 | 242 |
42
|
150 | 25.0 |
|
62
|
YCS-62/150
|
*150941
|
618
|
150
|
88.3
|
1330 | 335 |
55
|
163 | 38.0 |
|
93
|
YCS-93/75
|
*150958
|
930
|
75
|
133 | 990 | 280 |
80
|
214 | 55.0 |
| Тип | YCS-12/40 | YCS-12/75 | YCS-21/50 | YCS-21/150 | YCS-33/60 | YCS-33/150 | YCS-57/70 | YCS-62/150 | YCS-93/75 |
| A, мм | 135 | 188 | 163 | 325 | 183 | 333 | 230 | 323 | 265 |
| B, мм | 175 | 263 | 213 | 475 | 243 | 483 | 300 | 473 | 340 |
| C, мм | 20 | 20 | 27 | 27 | 33 | 33 | 42 | 55 | 80 |
| D, мм | 70 | 70 | 100 | 100 | 114 | 114 | 150 | 163 | 214 |
| E, мм | 55 | 55 | 73 | 73 | 90 | 90 | 118 | 130 | 170 |
| F, мм | 40 | 40 | 53 | 53 | 65 | 65 | 90 | 100 | 136 |
| J, мм | 38 | 38 | 50 | 50 | 62 | 62 | 85 | 96 | 132 |
| K, мм | 3 | 3 | 3 | 3 | 3 | 3 | 3 | 3 | 5 |
| M, мм | - | - | - | 120 | - | 120 | - | - | - |
| O, мм | M30x1.5 | M30x1.5 | M40x1.5 | M40x1.5 | M48x1.5 | M48x1.5 | M65x2 | M78x2 | M115x2 |
| P, мм | 20 | 20 | 25 | 25 | 30 | 30 | 35 | 40 | 45 |
| R, мм | 4 | 4 | 5 | 5 | 5 | 5 | 5 | 5 | - |
| S, мм | - | - | - | 51 | - | 51 | 24 | 24 | 24 |
| T, мм | - | - | - | - | - | - | 155 | 200 | 170 |
| U, мм | 58 | 58 | 82 | 82 | 92 | 92 | 120 | 135 | 180 |
| V, мм | 2xM8 | 2xM8 | 2xM10 | 2xM10 | 4xM10 | 4xM10 | 4xM12 | 4xM12 | 4xM16 |
| W, мм | 30 | 30 | 35 | 35 | 40 | 40 | 50 | 60 | - |
| X, мм | M70x2 | M70x2 | M100x2 | M100x2 | M110x2 | M110x2 | M150x3 | M160x3 | - |
| Y, мм | 7 | 7 | 10 | 10 | 10 | 10 | 12 | 12 | 15 |