Гидравлический пресс Yale RPES универсальный

Производитель:

Усилие: 10 - 23 т

Гидропрессы моделей RPES - это гидравлические прессы начального уровня. Прессы имеют высокую рамную конструкцию и укомплектованы гидроцилиндром серии YS и гидронасосoм (c ручным приводом серии HPS или с электроприводом серии PYЕ). Все прессы этой серии стандартно укомплектованы манометром и гидрошлангом. 

  • Гидравлический пресс Yale RPES универсальный - Гидравлические прессы
  • Гидравлический пресс Yale RPES универсальный - Гидравлические прессы

Производитель:

Усилие: 10 - 23 т

Гидропрессы моделей RPES - это гидравлические прессы начального уровня. Прессы имеют высокую рамную конструкцию и укомплектованы гидроцилиндром серии YS и гидронасосoм (c ручным приводом серии HPS или с электроприводом серии PYЕ). Все прессы этой серии стандартно укомплектованы манометром и гидрошлангом. 

Тип
Артикул
4025092*
Давление
т
Гидроцилиндр
Ход штока
мм
Возврат штока
Тип насоса Распред. клапан
Гидронасос
Вес
кг
RPES – 1015 M-2
*160766
10
YS – 10/150
150
пружина
ручной ручной
HPS-2/0.7 A
94
RPES – 1025 EM-1
*162579
10
YS – 10/250
250
пружина
элект. ручной
PYE-07/3/10/3M-RPY
94
RPES – 2316 M-2
*160780
23
YS – 23/160
160
пружина
ручной ручной
HPS-2/0.7 A
94
RPES – 2325 M-2
*160797
23
YS – 23/250
250
пружина
ручной ручной
HPS-2/2 A
94
RPES – 2325 EM-PYE 07
*243728
23
YS – 23/250
250
пружина
элект. ручной
PYE-07/3/10/3M-RPY
94

Тип
A min
мм
A max
мм
B
мм
C
мм
D
мм
E
мм
F
мм
G
мм
H
мм
I
мм
K
мм
L
мм
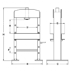
RPES – 10
50 930 700 650 500 - 150 240 1695 245 - -
RPES – 23
50 930 700 650 500 - 150 240 1695 245 - -



Другие товары в этой категории: